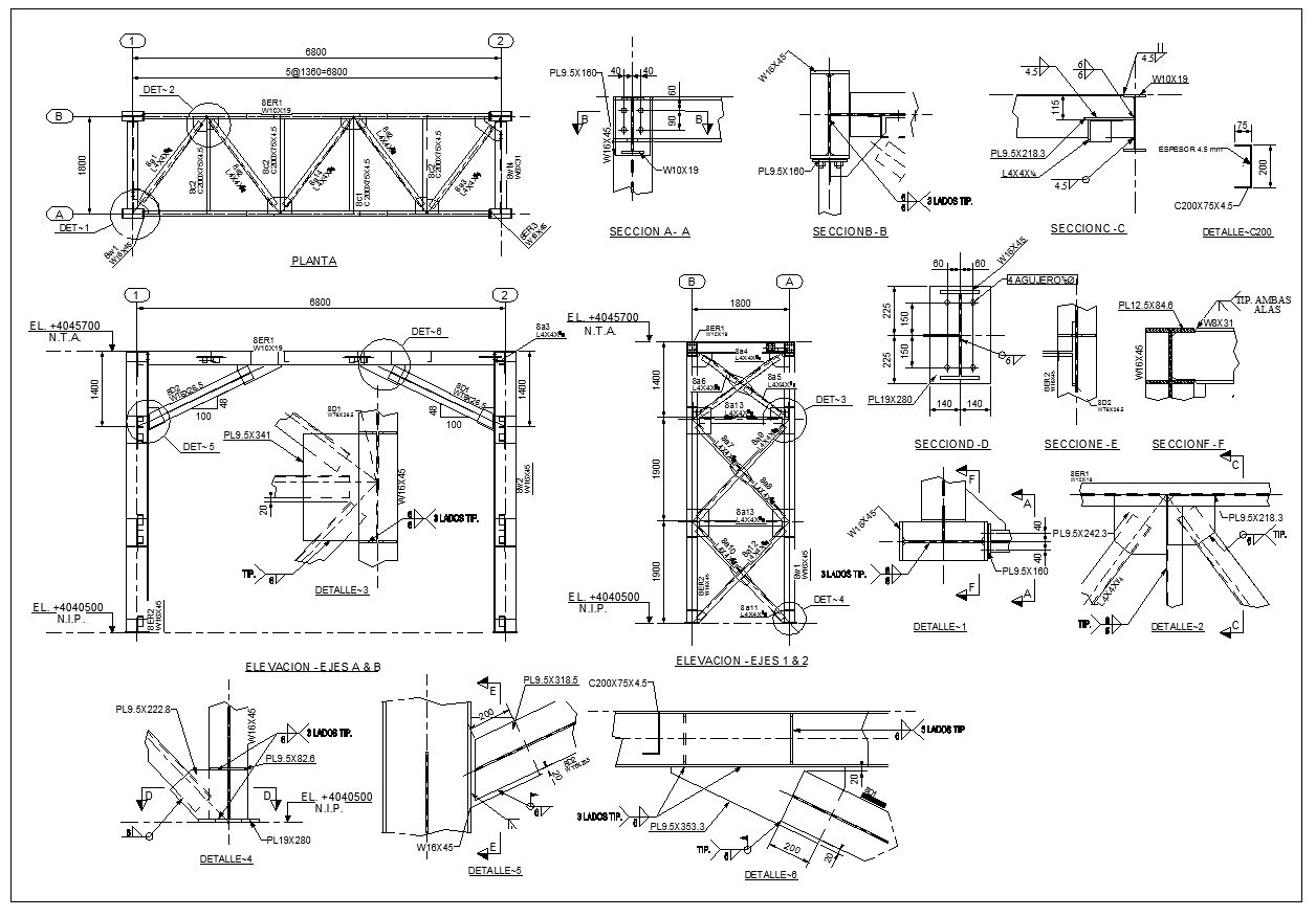
Smart Erection Layouts for Seamless Installation
Erection drawings developed using SDS2 provide clear, site-ready guidance for the accurate assembly of structural steel. These drawings are generated directly from intelligent 3D models, ensuring precise member identification, connection locations, and erection sequences. They enhance coordination between fabrication and site teams by minimizing ambiguity and rework. With embedded dimensions, bolt details, and layout references, SDS2 erection drawings improve installation speed, safety, and overall construction efficiency..
